Skip to main content

Neumann Monson Iowa City Studio Renovation

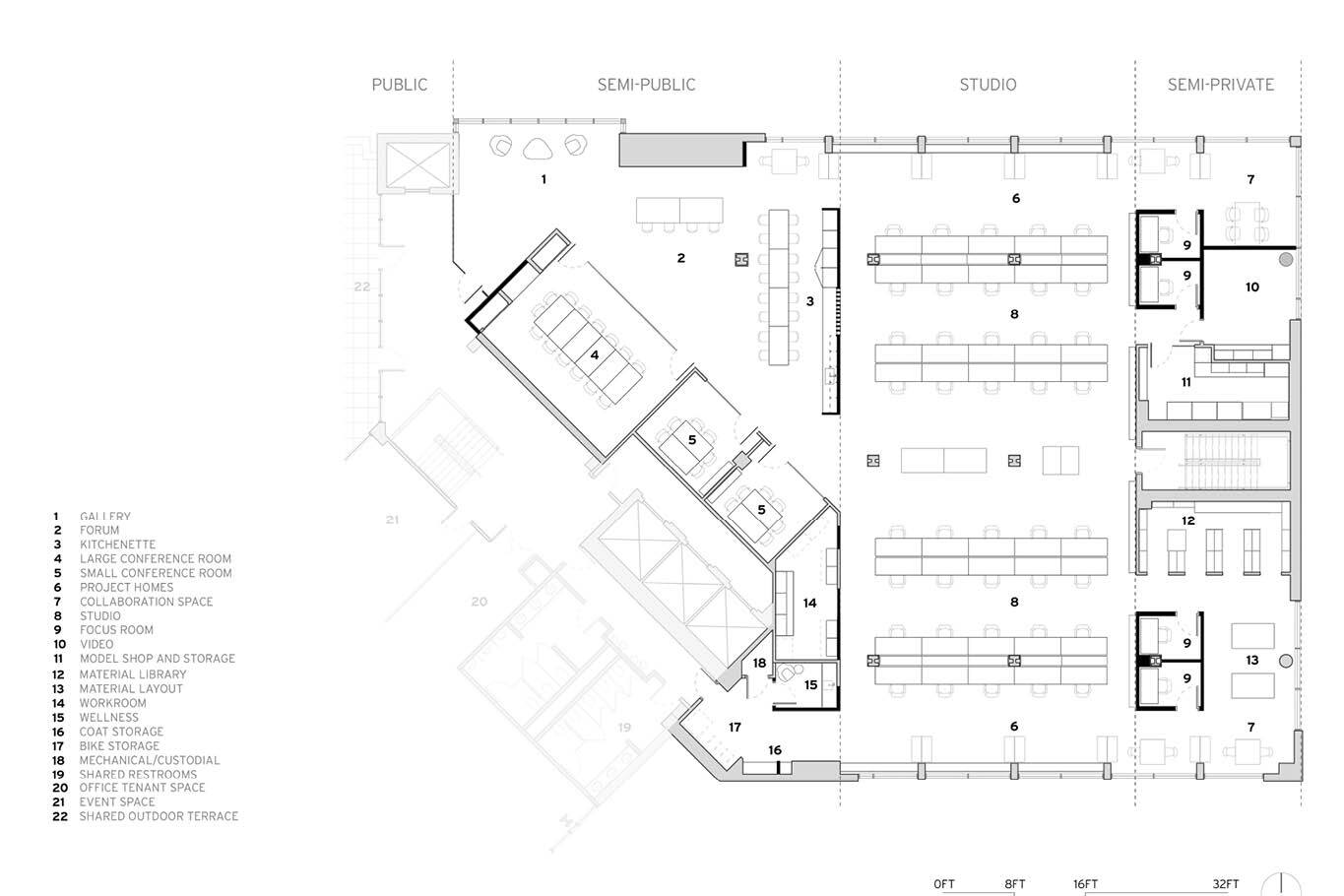
Our Iowa City studio has occupied the third floor of Plaza Towers since 2006. As we moved forward from the 2020 pandemic, we began reexamining how we work and cultivating a more holistic approach to sustainable design. 

Our renovated studio is designed to evolve with our culture, serve as an example of the contemporary workforce, and reflect our values. To guide decision-making, we adopted the Living Future's CORE Certification program, a building verification system measuring energy performance, material usage, and social equity.   

The studio’s design emphasizes flexibility and choice, allowing occupants to work in an environment that best suits their needs. Reducing individual workstations increased group-work space from 43% of the working area to 65%. One example is the Forum at the studio’s heart where team members can exchange ideas at pin-up and marker boards.  

Reducing workstation sizes also allowed for private focus rooms, a wellness room, bike storage, and dedicated spaces for model- and video-making. 92% of regularly occupied spaces have access to daylighting and views, with elements along the perimeter minimized to enhance sight lines.

The renovation was also an opportunity to upgrade the studio’s systems and improve performance. An all-electric Variable Refrigerant Flow (VRF) mechanical system reduced energy consumption by 41% compared to a similarly sized workplace. The system’s condensate recovery system provides chlorine-free water for the studio’s many plants. 

Whenever possible, we reused materials from our previous studio. 100% of all ceiling tiles and doors came from the previous studio, as well as 99% of the glass and 76% of the casework. New materials like ash hardwood, rebar, and blackened steel were chosen for their ability to reveal age and wear over time. 

Approximately 40% of the materials were sourced from within a 300-mile radius. Ash hardwood on workstations, tabletops, and the kitchen—sourced from Iowa City and Coralville’s Parks and Recreation departments—was dead, dying, or infected by the Emerald Ash Borer, an invasive insect. All wood was processed by Koffron Hardwoods in Tiffin and assembled by McComas-Lacina Construction before arriving on site. 

To learn more about the renovation and its features, read our project brochure.

Project Type: Workplace

Location: Iowa City, Iowa

Start Your Architectural Journey

You deserve a space where your organization reaches its potential. Let’s help you get there. Schedule a 30-minute call with an expert architect to discuss your project and goals. We typically respond within 2-3 business days.