Skip to main content

Cedar Cove

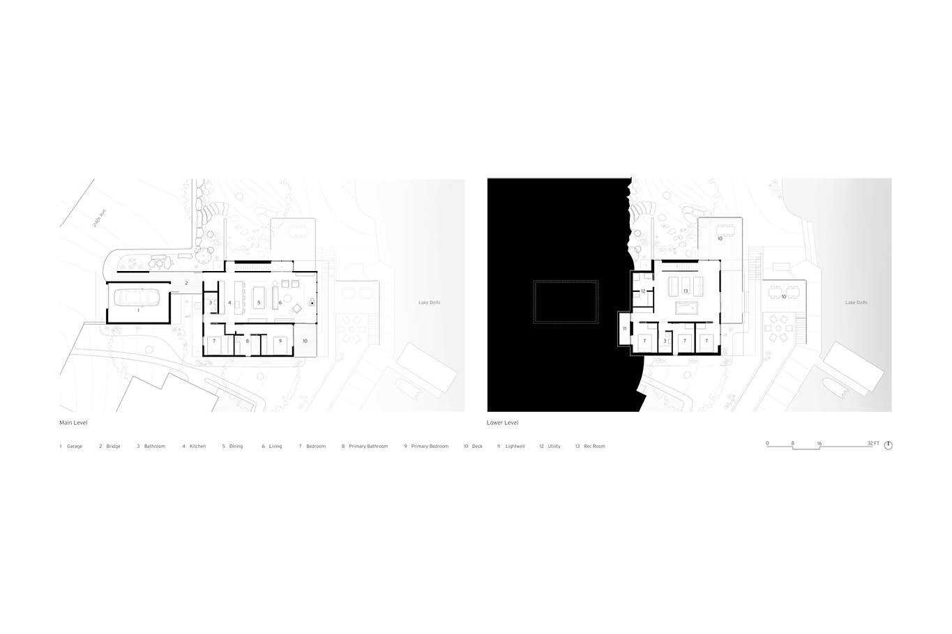
This family retreat provides a welcoming, all-season haven for empty nesters and their five adult children to gather, regenerate, and reconnect throughout the year. Located on a recreational lake, the home fosters a deep connection to place through a variety of indoor and outdoor spaces that support lively family reunions and quiet reflection alike.

The retreat replaces a deteriorated 1960s cabin, reusing the footprint and lakeside retaining walls. This approach honors the original siting—aligned with the summer solstice—and protects neighboring views. An eight-foot cantilever extends the main-level living space toward the lake, increasing usable area while preserving the original footprint.

Entry from the street is via a bridge that connects the single-story garage to the main entrance, marking a transition from daily routines to lakeside serenity. Full-height operable and fixed windows on the lakeside immerse occupants in the sounds, sights, and scents of nature. Overhangs and balconies provide shade while expanding the living space outdoors.

The two-story design prioritizes communal areas, both inside and out. The lakeside deck is broken into a series of platforms that support varying levels of interaction and privacy, visually softening the edge between architecture and shoreline.

Simple materials allow the natural surroundings to remain the focal point. Black corrugated metal references the region’s agrarian buildings, while natural stone and boulders integrate with the terrain. The mainly white interior uses white oak floors, plaster walls, and polished concrete. Slatted wood ceiling panels cleverly conceal acoustic treatments. A 23% window-to-wall ratio is achieved.

Project Type: Residential

Location: Delhi, Iowa

Size: 2,975 SF

Completed: 2023

Start Your Architectural Journey

You deserve a space where your organization reaches its potential. Let’s help you get there. Schedule a 30-minute call with an expert architect to discuss your project and goals. We typically respond within 2-3 business days.